Skip to main content Skip to footer

KONTOR

Metroselskabets domicil

Det primære fokus i metroselskabets nye tilbygning var, at skabe en klar sammenhæng mellem den eksisterende bygning og den nye bygning, hvor de har fået masser af kontorplads.

En gennemgående sammenhæng

Metroselskabets nye del af kontorbygningen skulle bygges direkte sammen med det eksisterende byggeri, hvorfor tilbygningen er bygget i samme materialer som det eksisterende byggeri. Det skaber en klar sammenhæng mellem de to bygninger - både indvendigt og udvendigt. 

Noget af det, der går igen er dimensioner og materialer på vinduerne, samt de farver væggene er malet i.

Tre etager med kontor

Bygningen er i tre etager, hvor der på hver etage er et storrumskontor på hele 296 m2. Derudover er der et to-plans auditorie med plads til 100 personer, samt flere mødelokaler, mindre kontorer og toiletter. Sidst, men ikke mindst, er der en elevator i bygningen.

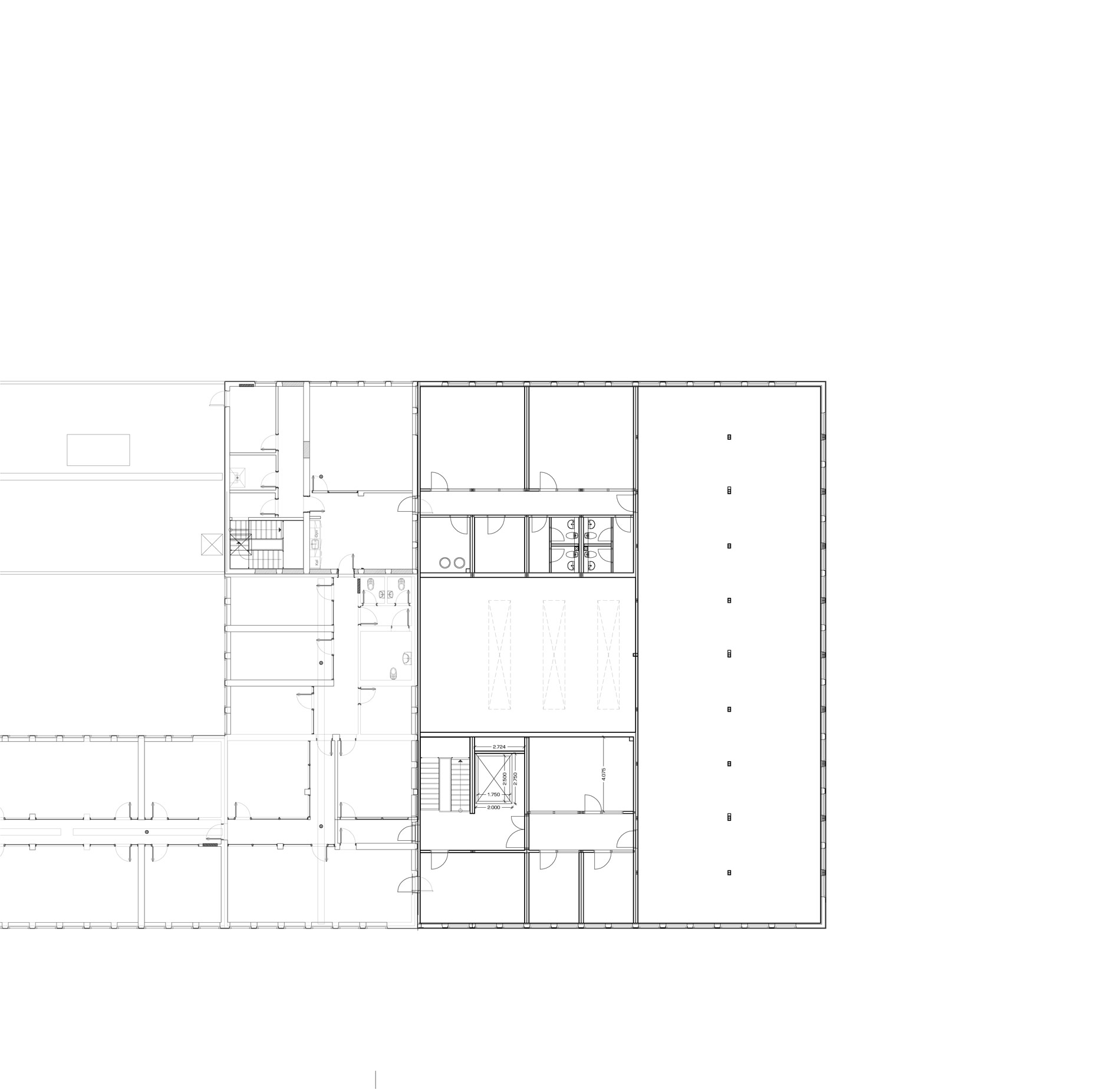
Plantegning over stueetagen ved metroselskabet

stueplan

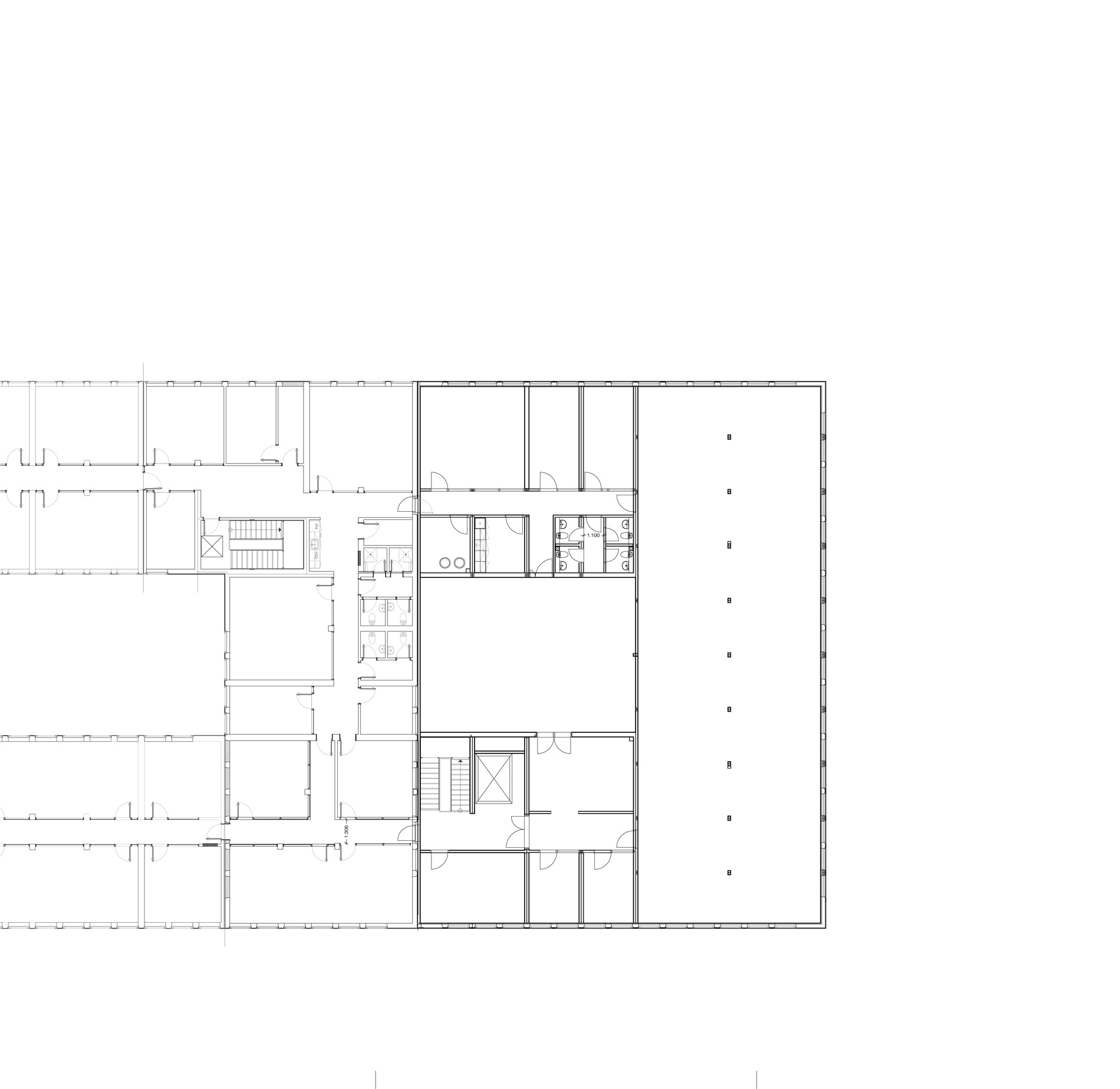
Plantegning over 1. sal ved metroselskabet

1. sal plan

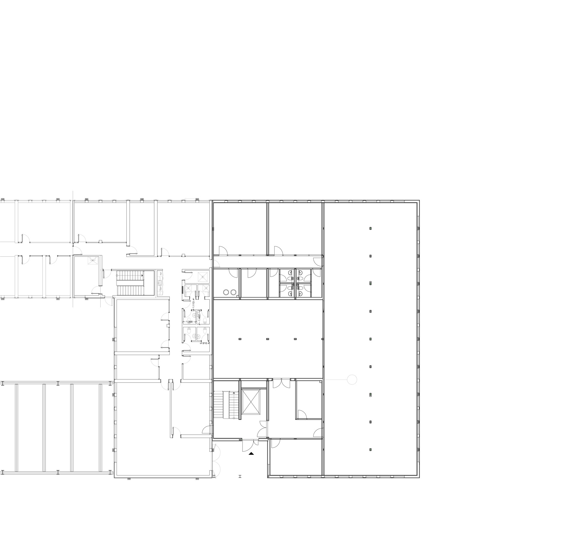
Plantegning over 2. sal hos metroselskabet

2. sal plan

Metroselskabet

Entreprise: Totalentreprise
Bygherre: Metroselskabet
Bruttoareal: 2.000 m²
År: 2015

KONTAKT OS

Skal vi bygge dit næste projekt?

Vi vil meget gerne høre fra dig hvis du skal til at projektere et byggeri, eller hvis du har brug for inspiration til hvad modulbyggeri også kan.

Udfyld venligst fornavn
Udfyld venligst efternavn
Indtast venligst en gyldig e-mailadresse

Denne side er beskyttet af reCAPTCHA. Google Privatlivspolitik og Servicevilkår gælder.